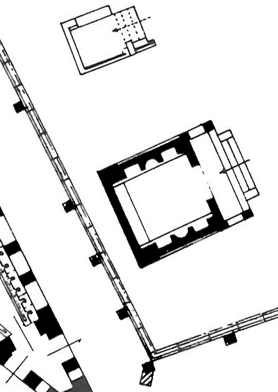
| In the south-west part of the palaestra are two small temples. The larger one might be Severan. It had marble revetment. The entrance of the cella was flanked by statues. A podium stands against the back wall of the cella. In each of the lateral walls are three niches. The smaller temple belongs to the later third or early fourth century AD. The exterior had marble revetment, the floor was covered with polychrome marble (opus sectile). A base for a cult statue stands against the back wall, in front of the edifice are the remains of an altar. Two objects may belong to these shrines. First of all a terracotta antefix from the first or second century AD. It was found in the smaller of the two structures. It has a depiction of a winged Victoria killing a bull. A row of antefixes will have decorated the upper part of the shrine. Secondly a votive group, with the depiction of a snake, Aesculapius, and two goddesses on a couch, perhaps Ceres and Proserpina. This object was found in the rooms to the south of the palaestra. It may be related to a lectisternium, a meal at which the gods were thought to be present, lying on a lectus. The reference to new life (Ceres / Proserpina), and the relation that was made by the Romans between baths and health suggests that it was held during an epidemic. |  Plan of the temples. After SO I. | 




